Jan. 14, 2026 | Allgemein, Bekanntmachungen
Am Mittwoch, den 21.01.2026, findet um 19:30 Uhr in der Mensa Grundschule, Dietingen, eine Sitzung des Gemeinderates statt. Hierzu werden Sie ordnungsgemäß eingeladen. T A G E S O R D N U N G : Öffentlich: Bürgerfragen Kindertagesstätte Wunderfitz Böhringen –...
Jan. 14, 2026 | Allgemein, Bekanntmachungen
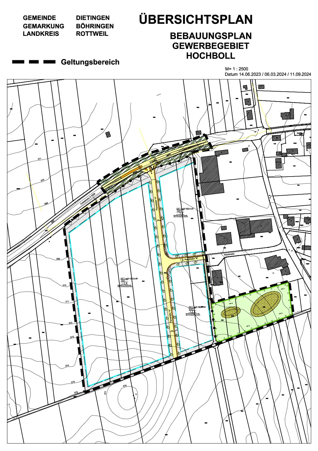
Am Mittwoch, den 21.01.2026 findet um 19:30 Uhr in der Mensa Grundschule, Dietingen eine Sitzung des Bauausschusses statt. Hierzu werden Sie ordnungsgemäß eingeladen. T A G E S O R D N U N G Öffentlich: 1. Neubau eines Zweifamilienhauses mit Carport; Furtenweg,...
Jan. 13, 2026 | Allgemein
Wie auch im vergangenen Jahr werden wir in der ersten Woche der Osterferien (KW 14) für alle Grundschüler der Gesamtgemeinde Dietingen wieder eine Ferienbetreuung anbieten. Die Ferienbetreuung wird in der Zeit von 7.00 Uhr bis 13.30 Uhr (bei Halbtagsbetreuung) bzw....
Jan. 13, 2026 | Allgemein
Zum 1. Januar 2026 konnten wir zwei neue Mitarbeiter beim Bauhof der Gemeinde begrüßen. Herr Wettki und Herr Näger verstärken seitdem das Team und bringen sich bereits engagiert in die vielfältigen Aufgaben des Bauhofs ein. Wir heißen beide herzlich willkommen und...
Jan. 12, 2026 | Allgemein
Die Gemeinde Dietingen erweitert ihren Informationsservice: Ab Januar 2026 können Sie aktuelle Neuigkeiten, wichtige Mitteilungen und Veranstaltungshinweise auch ganz bequem über WhatsApp erhalten. Mit dem neuen WhatsApp-Kanal der Gemeinde Dietingen bleiben Sie immer...
Dez. 18, 2025 | Allgemein, Berichte aus dem Gemeinderat
Aus der Sitzung des Gemeinderats am 12.11.2025 werden folgende Ergebnisse mitgeteilt: Bürgerfragen Es wurden keine Bürgerfragen vorgetragen. Neufassung der Wasserversorgungssatzung; Beratung und Satzungsbeschluss Bürgermeister Felix Hezel wies darauf hin, dass die...