Wohnbauplätze
Schöne Bauplätze in attraktiver Lage
Haben wir Ihr Interesse geweckt?
Die Gemeinde Dietingen bietet Wohnbauplätze für einheimische und auswärtige Bauplatzinteressenten. Bitte wenden Sie sich bei Interesse direkt an
Herrn Bürgermeister Felix Hezel (Tel. 0741 4806-0; info@dietingen.de) oder
Frau Michaela Karle (Tel. 0741 4806-24; michaela.karle@dietingen.de).
Bauplätze Dietingen
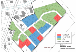
Bauplätze Dietingen-Mitte II aktuell (PDF)

D_Mitte_II_örtliche_Bauvorschriften_ausgefertigt (PDF)
D_Mitte_II_Plan_210922 (Bauplatzeinteilung nicht mehr aktuell), Plan aktuell siehe oben (PDF)
D_Mitte_II_Planungsrecht_ausgefertigt (PDF)
Bauplätze Gößlingen
Plan Baugebiet Gößlingen Gansgärten II aktuell (PDF)
GansgärtenII_örtliche Bauvorschriften (PDF)
GansgärtenII_plan.Festsetzungen (PDF)
Anschrift
Gemeindeverwaltung Dietingen
Kirchplatz 1
78661 Dietingen
Kontakt
Telefon: +49 741 / 4806-0
Telefax: +49 741 / 4806-33
E-Mail: info@dietingen.de
Öffnungszeiten
Montag
08.00 Uhr bis 11.45 Uhr
Dienstag
08.00 Uhr bis 11.45 Uhr
14.00 Uhr bis 16.45 Uhr
Mittwoch
geschlossen
Donnerstag
08.00 Uhr bis 11.45 Uhr
14.00 Uhr bis 18.15 Uhr
Freitag
08.00 Uhr bis 12.15 Uhr
Rechtliches
Anschrift
Gemeindeverwaltung Dietingen
Kirchplatz 1
78661 Dietingen
Kontakt
Telefon: +49 741 / 4806-0
Telefax: +49 741 / 4806-33
E-Mail: info@dietingen.de
Folgen Sie uns auf:
Öffnungszeiten
Montag
08.00 Uhr bis 11.45 Uhr
Dienstag
08.00 Uhr bis 11.45 Uhr
14.00 Uhr bis 16.45 Uhr
Mittwoch
geschlossen
Donnerstag
08.00 Uhr bis 11.45 Uhr
14.00 Uhr bis 18.15 Uhr
Freitag
08.00 Uhr bis 12.15 Uhr
Rechtliches
Sie müssen den Inhalt von reCAPTCHA laden, um das Formular abzuschicken. Bitte beachten Sie, dass dabei Daten mit Drittanbietern ausgetauscht werden.
Mehr Informationen
